Floor Plans
Rooms
-
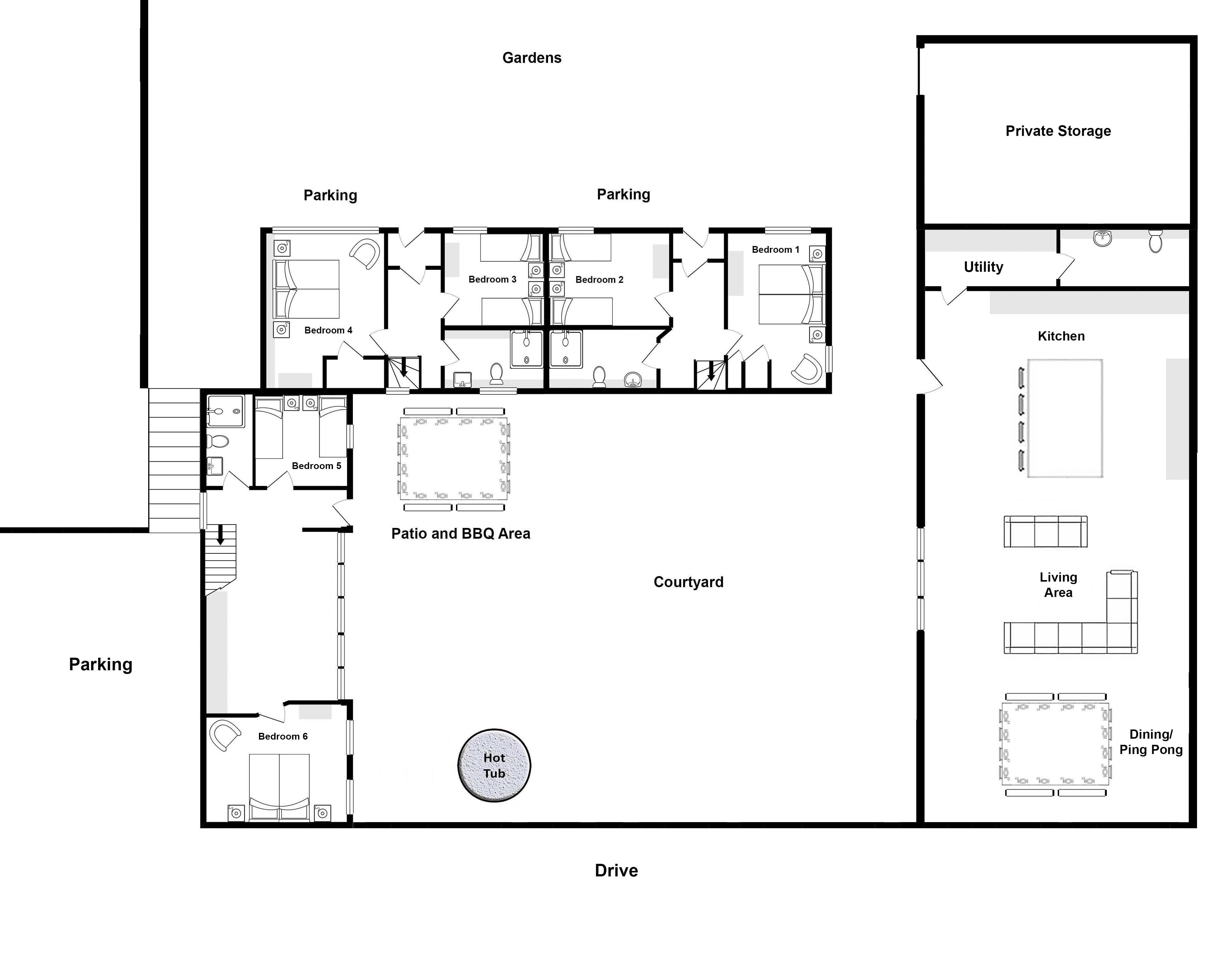
Whimbrels Barton - Bedroom 1 is in Snipes Rest and has zip and link beds (super king or twin) Bedroom 1
Bedroom 1 is on the ground floor in Snipes Rest and has zip and link beds that can be arranged as a super king or twins. Just across the hall is the shower room. Sleeps 2.
-
Whimbrels Barton - Bedroom 2 is in Snipes Rest and has zip and link beds Bedroom 2
Bedroom 2 is on the ground floor in Snipes Rest and has zip and link beds that can be arranged as a super king, though bear in mind that one side will be against a wall in order to make the best use of space. Next door is the shower room, shared with Bedroom 1. Sleeps 2.
-
Whimbrels Barton - Bedroom 3 is in Curlews Halt and has zip and link beds (super king or twin) Bedroom 3
Bedroom 3 is on the ground floor at Curlews Halt and has twin beds. Just next door is the shower room, shared with Bedroom 4. The beds in this room are zip and link so they can be arranged as a super king, though bear in mind that one side will be against a wall in order to make the best use of space. Sleeps 2.
-
Whimbrels Barton - Bedroom 4 is in Curlews Halt and has zip and link beds (super king or twin) Bedroom 4
Bedroom 4 is Curlews Halt is on the ground floor and has zip and link beds that can be set up as a super king or twins. The shower room is just across the hall. Sleeps 2.
-
Whimbrels Barton - Bedroom 5 is a ground floor room in Bean Goose Barn with zip and link beds Bedroom 5
Bedroom 5 is on the ground floor at  Bean Goose Barn and has zip and link beds that can be arranged as a super king or twins - though bear in mind that when arranged as a superking one side will be against a wall in order to make the best use of space. Just next door is a shower room, shared with Bedroom 6. Sleeps 2.
-
Whimbrels Barton - Bedroom 6 is on the ground floor in Bean Goose Barn and has zip and link beds (super king or twin) Bedroom 6
Bedroom 6 is on the ground floor at Bean Goose Barn and has zip and link beds that can be arranged as a super king or twins. This room uses the shower room just across the kitchen. Sleeps 2.
-
Whimbrels Barton - Bedroom 7 is in Bean Goose Barn and has zip and link beds (super king or twin) Bedroom 7
Bedroom 7 is on the first floor at Bean Goose Barn and has zip and link beds, so you can have them arranged as a super king or twins. Just next door is the bathroom, shared with Bedroom 8. Sleeps 2.
-
Whimbrels Barton - Bedroom 8 is in Bean Goose Barn and has a king size bed Bedroom 8
Bedroom 8 is in Bean Goose Barn, on the first floor. It has a king size bed and use of the bathroom just the other side of the sitting room. From this room there is a door and steps leading down to the garden. Sleeps 2.
-
Whimbrels Barton - Get together in the huge open-plan living/entertaining room Kitchen
If requested, highchairs will be left for you in the kitchen area.
-
Whimbrels Barton - Sleeps 16 for happy family holidays and peaceful celebrations with your loved ones Equipment
This property owner offers the following items. If required these can be selected while doing your bed configurations within your booking.
2 x Highchairs
1 x Travel Cot
1 x Full Size Cot