Floor Plans
Rooms
-
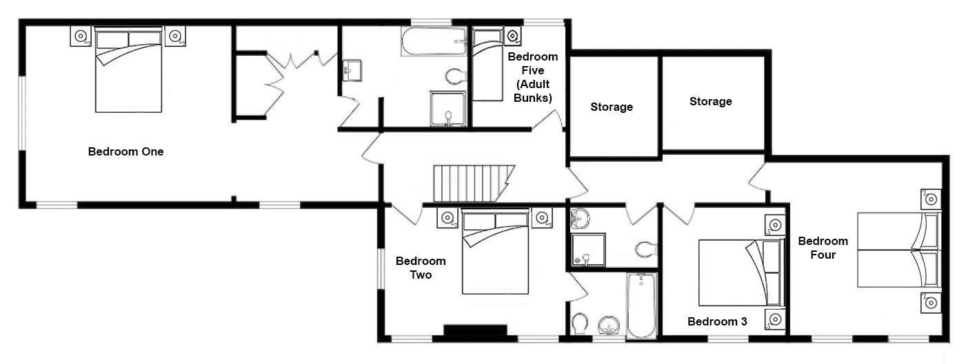
Overbrooks - Bedroom 1 has a super king bed, a dressing area, and an ensuite bathroom Bedroom 1
This is a large room in the main house, with a super king bed and an ensuite bathroom with a bath and overhead shower.
Sleeps 2 -
Overbrooks - Bedroom 2 has a king size bed and ensuite bathroom Bedroom 2
This room is in the main house. It has a king size bed and an ensuite bathroom with a bath and overhead shower.
Sleeps 2 -
Overbrooks - Bedroom 3 sleeps 2 in a double bed Bedroom 3
This room is in the main house and has a double bed. It has shared use of the family shower room.
Sleeps 2 -
Overbrooks - Bedroom 4: Super king or twin and a shower room right next door Bedroom 4
This room is in the main house and has zip and link beds that can be arranged as a super king or two singles. There is a shower room right next to this bedroom.
Sleeps 2 -
Overbrooks - Bedroom 5 sleeps 2 in adult sized bunk beds - what fun! Bedroom 5
This is the smallest bedroom, in the main house. It has adult size bunk beds and shared use of the family shower room.
Sleeps 2 -
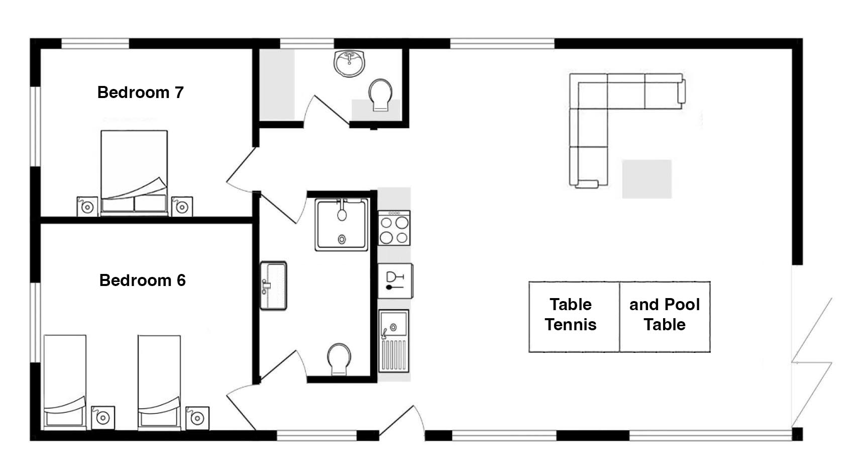
Overbrooks - Bedroom 6, in the annexe, is a twin room Bedroom 6
This room is in the annexe. It has twin beds and shared use of the Jack and Jill shower room with Bedroom 7.
Sleeps 2 -
Overbrooks - Bedroom 7, in the annexe has a king size bed Bedroom 7
This room is in the annexe. It has a king size bed and shared use of the Jack and Jill shower room with Bedroom 6.
Sleeps 2 -
Overbrooks - A well designed kitchen takes the stress out of cooking on a large group holiday Kitchen
If requested a highchair will be left in the kitchen for you.